Ngôi nhà phố 4x15m tại Tp.HCM này đã thay đổi khó tin sau khi được Beecons cải tạo. Mang đến một không gian sống rộng rãi, thông thoáng cho gia chủ, thay cho sự thiếu sáng và xuống cấp trước đây.
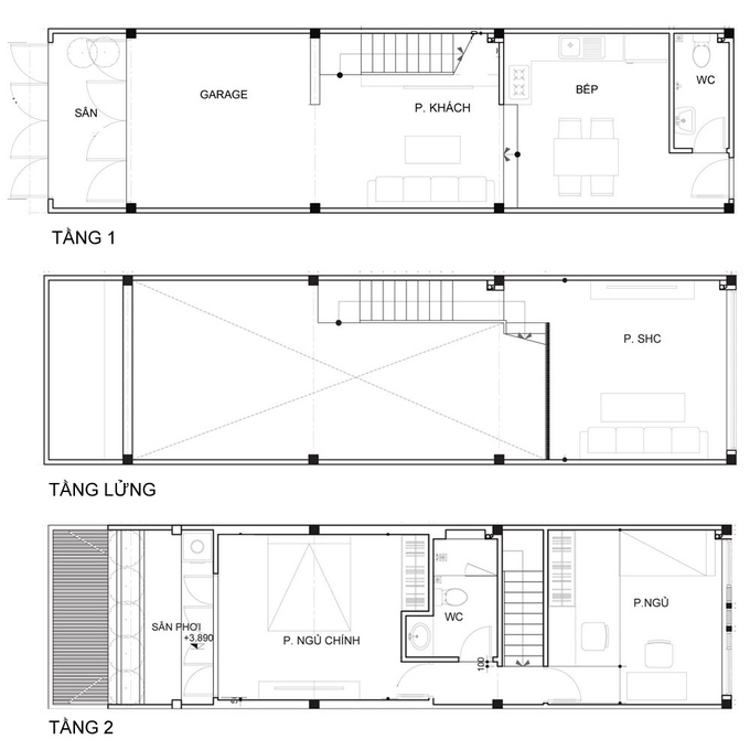
Công năng:
- Tầng trệt: Phòng khách, Nhà bếp, nhà vệ sinh
- Tầng lửng
- Lầu 1: 1 phòng ngủ lớn, 1 phòng ngủ nhỏ, 1 nhà vệ sinh chung, sân phơi

Bản vẽ thiết kế mặt bằng trước và sau khi sửa chữa
Nhược điểm của ngôi nhà phố cũ trước đây là thiếu sáng, thông gió không tốt, các không gian đã xuống cấp cũ kỹ khiến chất lượng sống của gia đình không được đảm bảo. Vì vậy, gia chủ đã quyết định sửa chữa cải tạo ngôi nhà của mình.

Sau khi được cải tạo sửa chữa, ngôi nhà phố 2 tầng 40m2 lột xác hoàn toàn khiến gia chủ vô cùng hài lòng với sự tiện nghi thoải mái trong không gian.
Sự cũ kỹ trước đây nay đã hoàn toàn được thay thế thành sự hiện đại, sang trọng nhờ hệ thống cửa và màu sơn nổi bật. Cửa sổ và cửa chính đã được chỉnh trang lại giúp ngôi nhà thêm thoáng đãng và đón được nhiều ánh sáng tự nhiên. Để dễ dàng hình dung hơn, bạn có thể tham khảo bản vẽ mặt bằng ngôi nhà trước và sau khi được cải tạo sửa chữa sau.

Căn nhà trước đây có hai tầng với gác lửng. KTS đã cho sửa chữa từ mặt đứng, quyết định ứng dụng hệ cửa lam sắt có thể đóng mở dễ dàng để thay đổi mặt tiền cho ngôi nhà. Hệ cửa lam sắt này còn có tác dụng thông gió tốt, cũng như là cửa thoát hiểm khi xảy ra sự cố.
Sự thay đổi kỳ diệu của ngôi nhà phố 40m2
KTS đã tư vấn chủ nhà giữ lại toàn bộ khung để nhằm giảm chi phí thi công sửa chữa, tập trung chủ yếu vào thay đổi những yếu tố liên quan đến sự cải thiện ánh sáng, giúp không gian ngôi nhà rộng thoáng hơn.

Toàn bộ thiết kế cầu thang, tầng lửng của ngôi nhà phố này đều được thay đổi để phù hợp hơn. Không gian của phòng khách rộng rãi, thoáng đãng có thể dùng làm nơi để xe cho gia đình.

Bên cạnh đó, khu vực bếp và nhà ăn cũng được chú trọng sửa chữa, mang đến sự khác biệt lớn trong tổng thể ngôi nhà. Nền phòng bếp được nâng cao hơn để phân tách với khu vực tiếp khách.


Không gian phòng ngủ cũng được bố trí lại để đáp ứng nhu cầu nghỉ ngơi của các thành viên trong gia đình. Phòng ngủ của các con được bố trí ở tầng 2 với cửa sổ giúp thông thoáng, KTS đã chú ý đến sự tiện dụng trong sinh hoạt và sử dụng kệ gỗ đa năng, vừa dùng làm bàn học vừa là kệ lưu trữ phục vụ việc học của các con.


Bạn có thể nhận thấy sự khác biệt lớn của phòng tắm trước và sau khi sửa chữa. Phòng tắm của ngôi nhà trông sáng và gọn gàng hơn nhiều, đem đến sự thoải mái và tiện nghi cho gia đình.

Chỉ với 400 triệu cho việc cải tạo, bạn đã thay đổi hoàn toàn diện mạo cho ngôi nhà của mình. Tùy từng diện tích, ý tưởng của chủ đầu tư Xây dựng Beecons sẽ có những phương án tối ưu từ thiết kế cho đến thi công phù hợp.
👍 Xem thêm các dự án cải tạo nhà phố khác tại: https://xaydungbeecons.com/category/du-an-nha-pho/
Hãy gọi ngay cho BEECONS để được tư vấn cặn kẽ hơn nhé !




Đánh giá
Chưa có đánh giá nào.